Starke Partner, suchen starke Partner.
75 Jahre Möbel Beck.
Objektgeschäft mit Architekten und Bauunternehmen
Objektgeschäft will gelernt sein, es passend für Sie umzusetzen, können die Wenigsten!
Kein Stress mehr, mit Möbel Beck an Ihrer Seite
Haben Sie sich in Ihrem Arbeitsalltag schon mehrfach über folgende Dinge aufgeregt?
- Entstehung von Mehrkosten bei einer zeitlichen Verschiebung des Bauprojekts.
- Unsaubere Montagearbeit, die angesichts mangelnden Hintergrundwissens und nicht vorhandener Ausbildungen der Mitarbeiter entstanden sind.
- Absprachen die nicht umgesetzt wurden, welche aufgrund zu vieler Ansprechpartner verloren gegangen sind.
Sie werden vielleicht schon Ihren Objekthändler bzw. Küchenbauer haben, doch sind Sie wirklich 100% zufrieden mit ihm? Kann er Ihnen zudem den besten Preis, 75 Jahre Erfahrung im Küchenbau, sowie hauseigene Schreinermeister und ein Personal mit handwerklicher Ausbildung, bieten? Falls nein, wäre es nicht an der Zeit etwas Neues, Besseres auszuprobieren?
Warum ist Möbel Beck der richtige Partner für Sie?
Unser Fokus liegt auf der individuellen Umsetzung Ihrer Anforderungsprofile. Wir selbst sind in der Baubranche tätig und haben eine eigene Bau-GmbH, in der wir unsere Gewerke und Immobilien eigenständig betreuen sowie überwachen.
Möbel Beck weiss worauf es bei der Küchenplanung und dem Küchenbau im Objektgeschäft ankommt.
Den besten Preis immer im Blick
Im Vergleich zu grösseren Küchenhändlern sind wir ein überschaubares Familienunternehmen mit mehreren Standbeinen und können Ihnen damit den besten Preis im Objektbereich mit hoher Qualität und jahrelanger Erfahrung bieten.
Ein direkter Ansprechpartner
Schlagen Sie sich nicht mehr mit mehreren Ansprechpartnern herum – bei uns bekommen Sie den besten Mann mit langjähriger Erfahrung im Bereich Küchenplanung und handwerklichem Hintergrund in der Küchenmontage.
Individuelle Ideen sind kein Problem für uns
Möchten Sie fort von den 08/15 Küchen und etwas Neues und Außergewöhnliches schaffen? Wir gehen auf individuellste Ideen ein und kreieren Ihnen ein Küchenkonzept, das Sie staunen lässt.
Wir passen uns Ihrem Zeitplan an
Sollte es bei Ihrem Projekt zu kurzfristigen Verzögerungen kommen, brauchen Sie sich bei uns keine Sorgen zu machen. Wir haben das Personal und den Background, um Ihnen die Ware zu liefern, sobald Sie diese brauchen
75 Jahre Erfahrung mit kompetenten Mitarbeitern
Bei uns sind Sie keine einfach Nummer sondern ein starker Partner, der mit Respekt und Ehrlichkeit behandelt wird. Wir haben Kuchenverkäufer und Schreinermeister, die schon über 20 Jahre in unserem Unternehmen sind und regelmässig von uns geschult werden. Werden auch Sie ein Teil der Möbel Beck Familie und erhalten Sie den besten Service in der Region!
Ehrlichkeit und Transparenz sind uns wichtig
Bei Möbel Beck existieren keine versteckten Kosten, wir legen Ihnen von Beginn an alle Daten und Fakten auf den Tisch und gehen auf individuelle Anfragen ein. Wir möchten, dass Sie ebenfalls von uns persönlich profitieren. Wir legen individuelle und monetäre und stimmige Vereinbarungen für Ihren Mehrwert fest.
Profitieren Sie von unseren günstigsten Einkaufsprovisionen & 75 Jahre langer Erfahrung im Objektgeschäft
Wir passen unser Angebot individuell auf Ihre Wünsche an – ob für eine Mietwohnung oder Eigentumswohnung – in kleiner oder in grosser Stückanzahl. Kontaktieren Sie uns für ein unverbindliches Erstgespräch!
Familienunternehmen im Bau- und Objektbereich
Bei Möbel Beck finden Sie langjährige Erfahrung und Durchführung der eigenen Bauprojekte, wie die Errichtung eines Einkaufszentrums, Ausbau / Renovierung von historischen Immobilien oder die Errichtung von 1.200 Wohneinheiten, bei denen Küchen und Wohneinrichtungen durch uns verbaut sind.
Wer ist Möbel Beck?
Wir sind ein Familienunternehmen, welches seit über 75 Jahren im Objekthandel in Bad Säckingen tätig ist. Über Jahre und Generationen hinweg wurden mehrere Standbeine aufgebaut. So liegt unser Tätigkeitsbereich auch in einer eigenen Bau-GmbH sowie Bauprojekten z.B. der Errichtung eines Einkaufszentrums in Bad Säckingen, den Beck Arkaden, oder dem Ausbau und der Renovierung von historischen Immobilien bzw. Einrichtungen von über 1200 Wohneinheiten, in denen Küchen und Wohneinrichtungen von uns verbaut wurden.
Wie Sie sehen, bringen wir die vollumfängliche Expertise mit und wissen, worauf es in Ihrer Branche ankommt.
Das schätzen unsere Partner an der Zusammenarbeit
Es sind die langjährigen Partner die an uns schätzen, dass wir die Bauleitung für unsere beauftragten Gewerke selbständig koordinieren und sie sowohl zeitlich als auch mental entlasten. Für jedes Problem finden wir eine Lösung, damit Sie Ihre Bauzeitenpläne einhalten können und sich nicht in unnötige Kosten stürzen müssen.
Mit Möbel Beck an Ihrer Seite können Sie sich vollsten auf Ihre Arbeit konzentrieren und sich zu 100% auf uns verlassen.
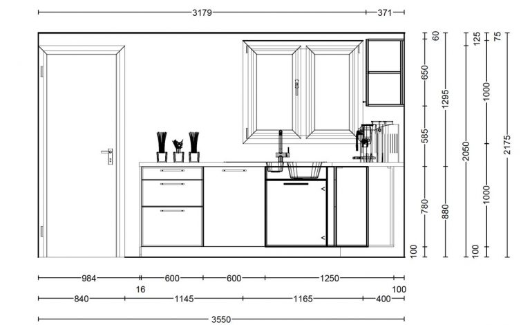
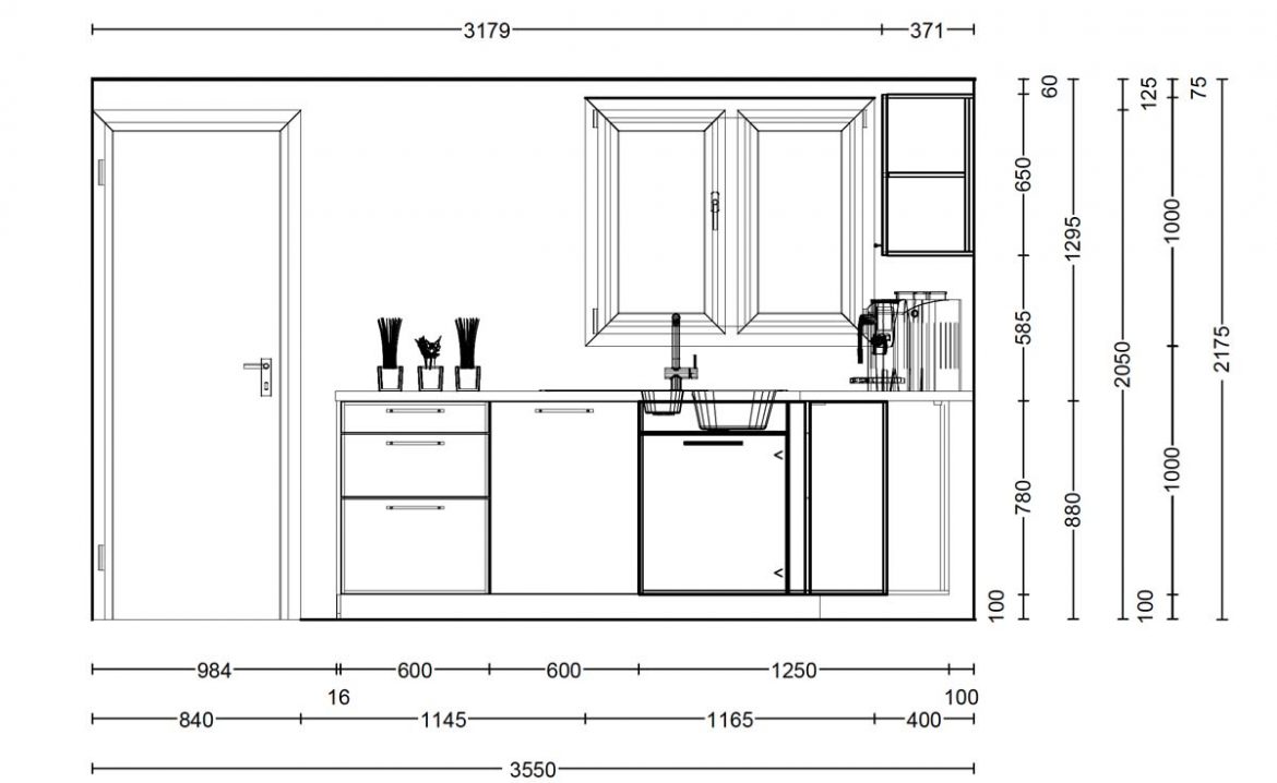
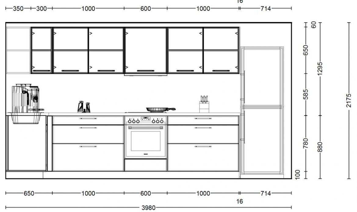
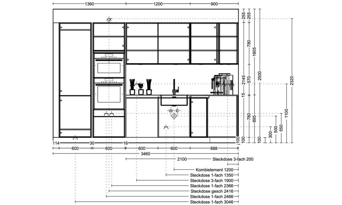
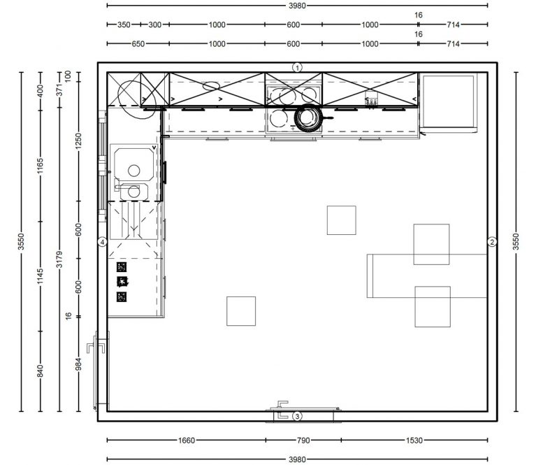
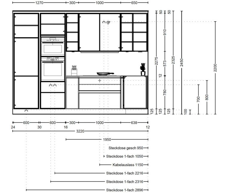
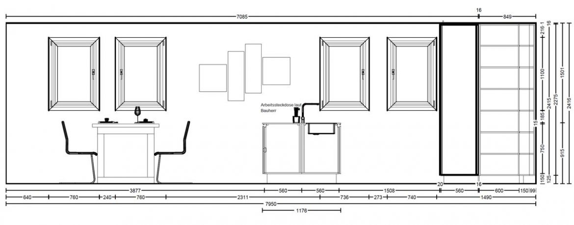
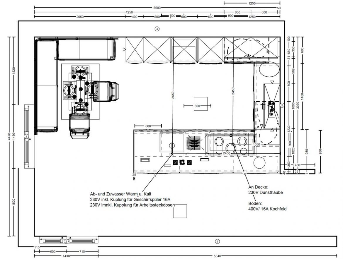
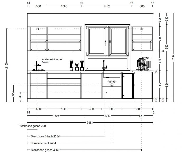
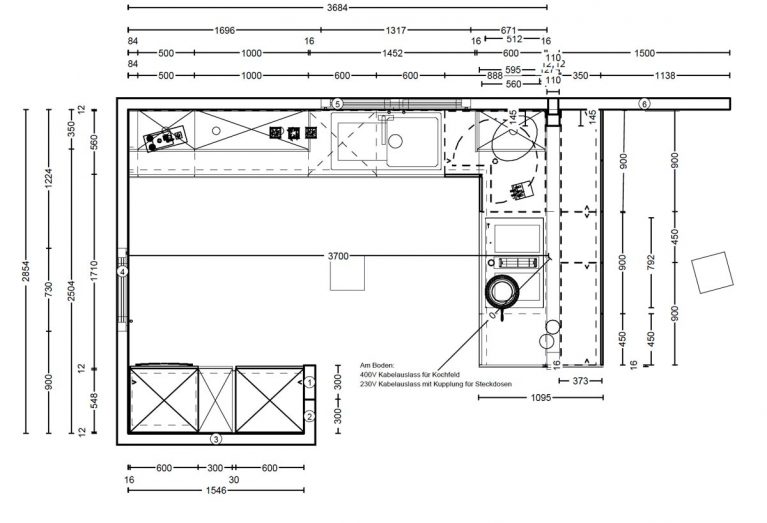
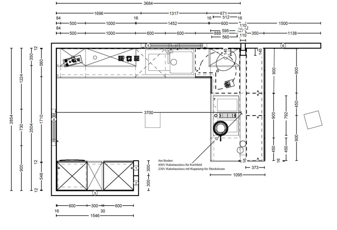
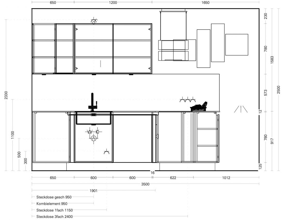
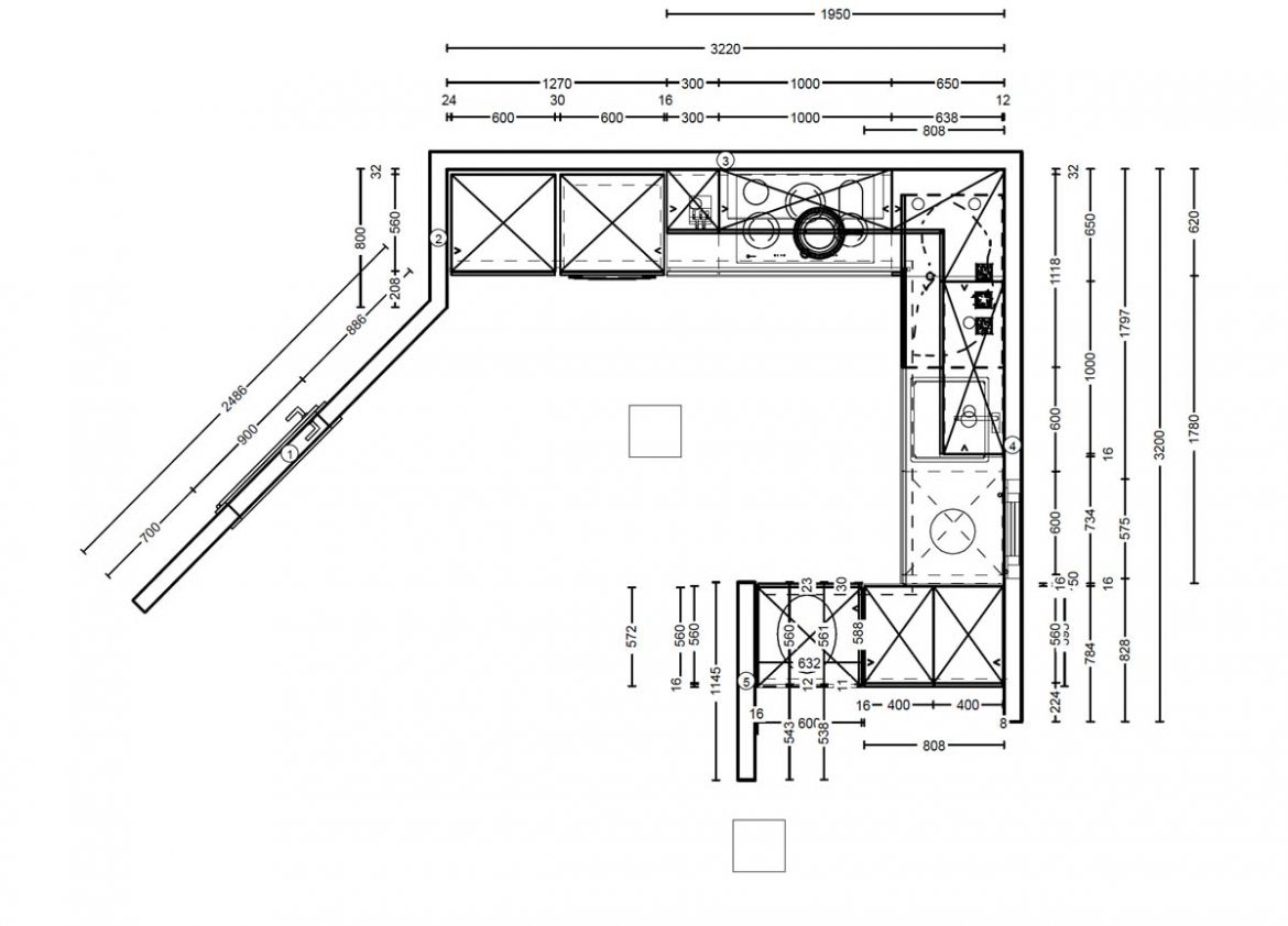
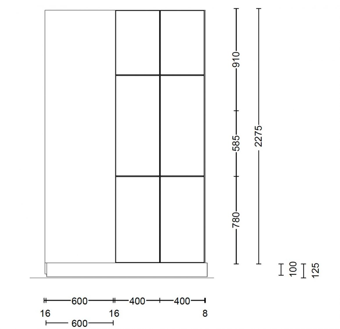
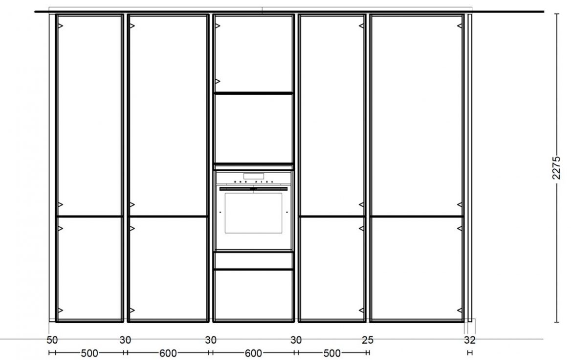
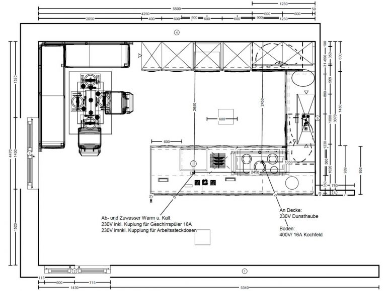
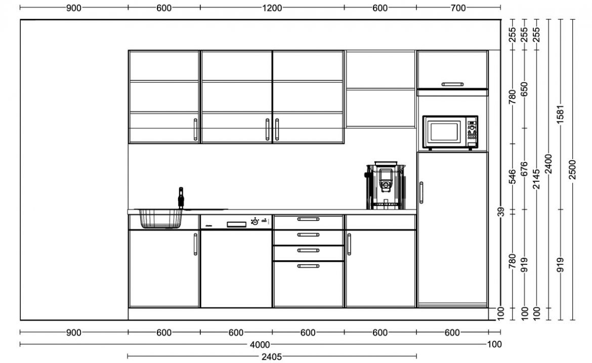
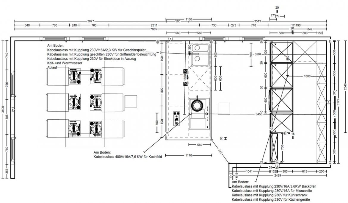
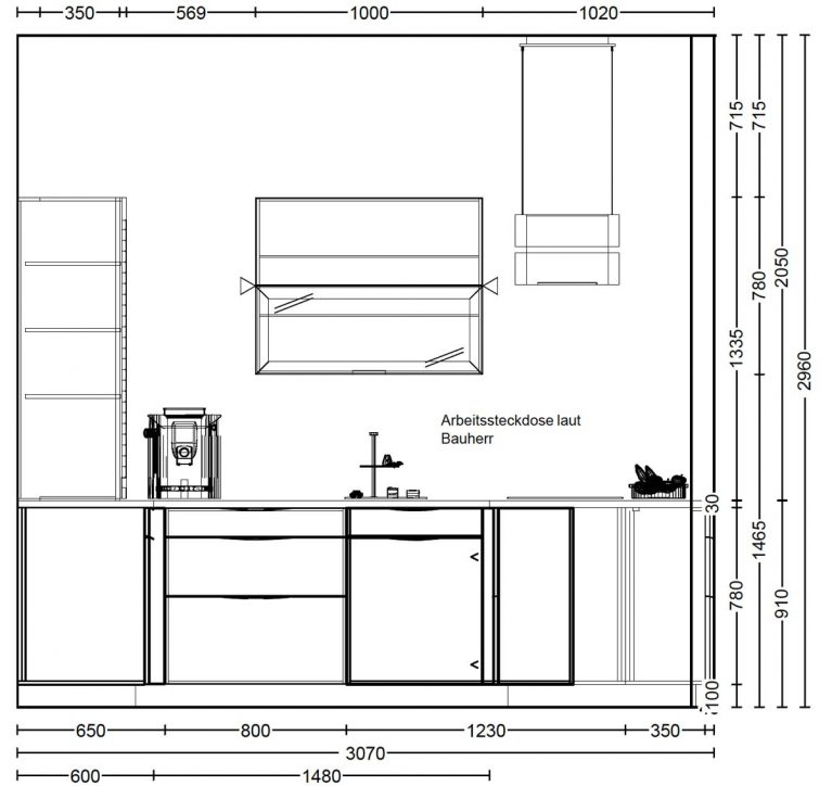
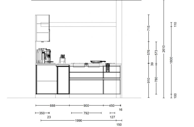
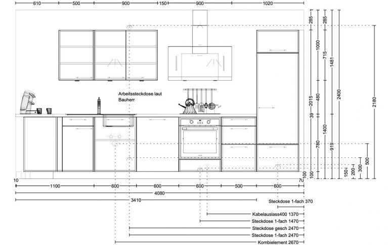
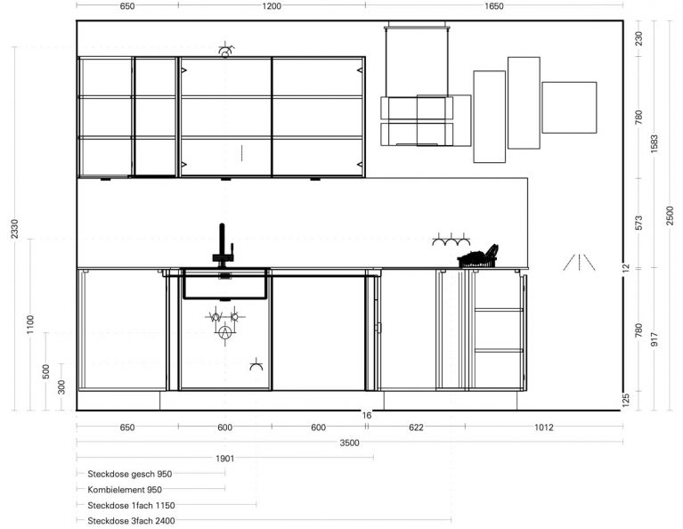
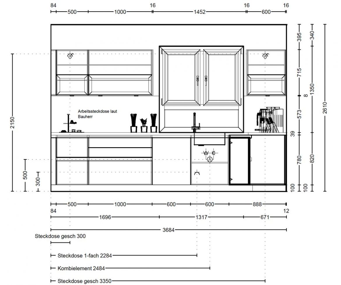
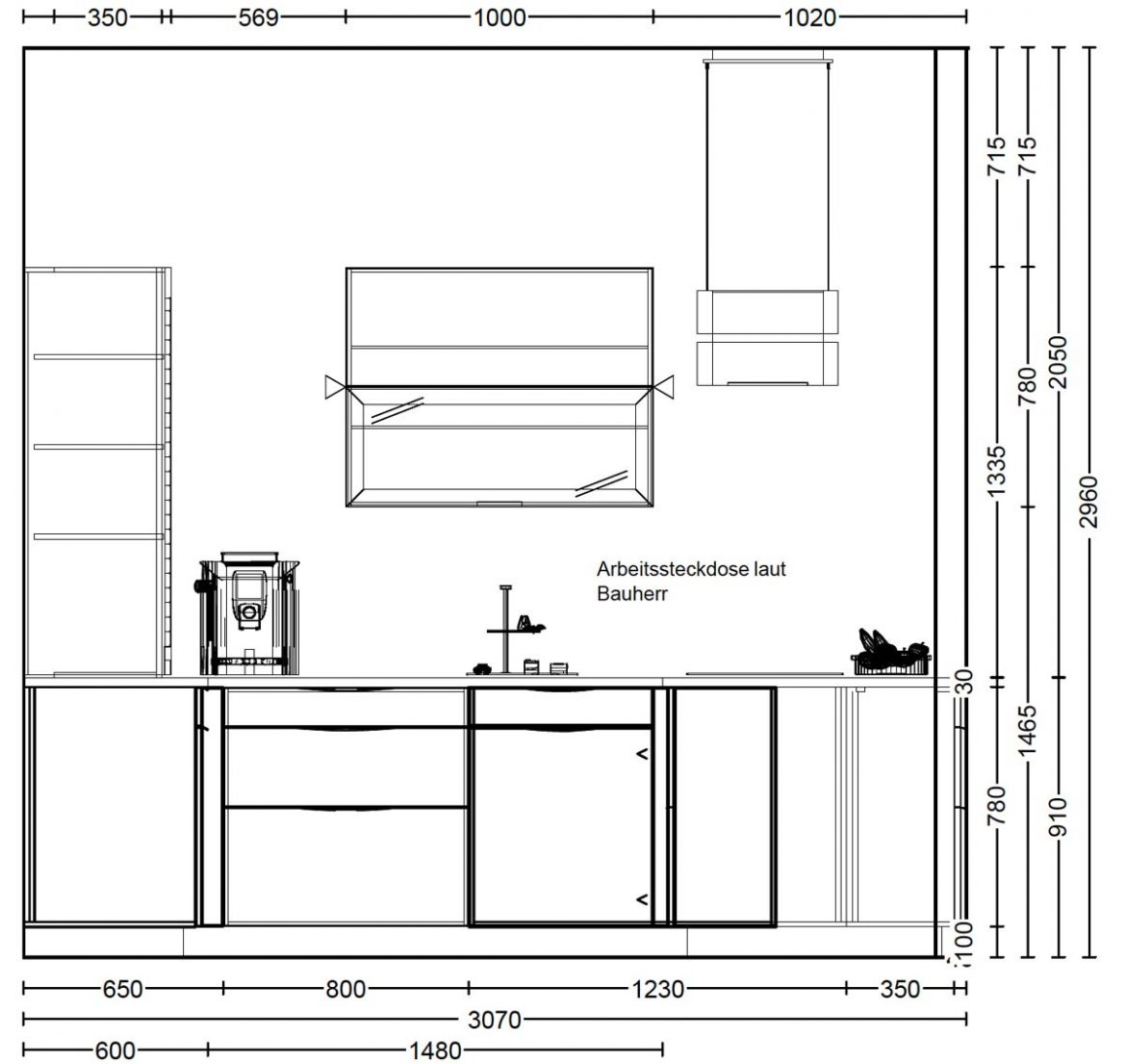
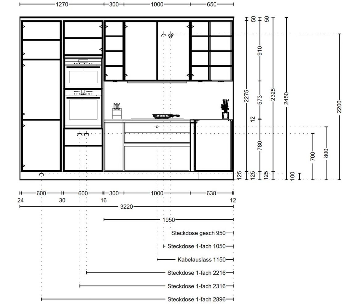
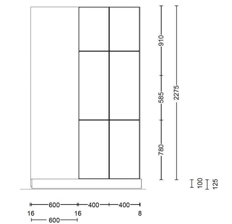
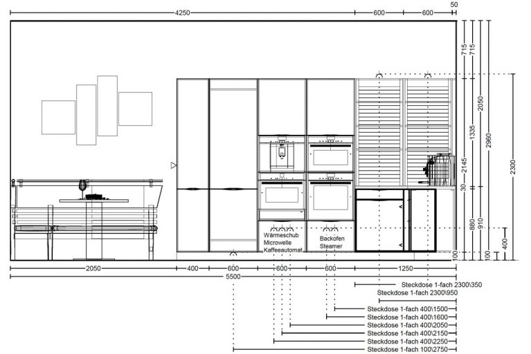
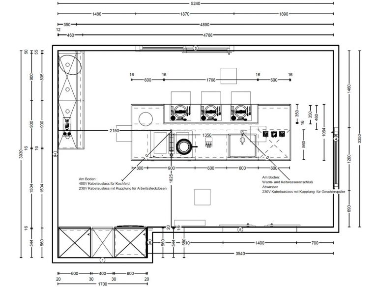
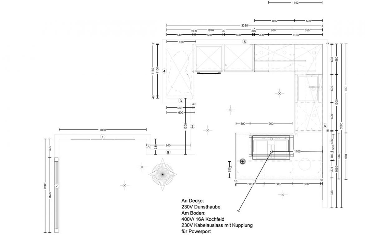
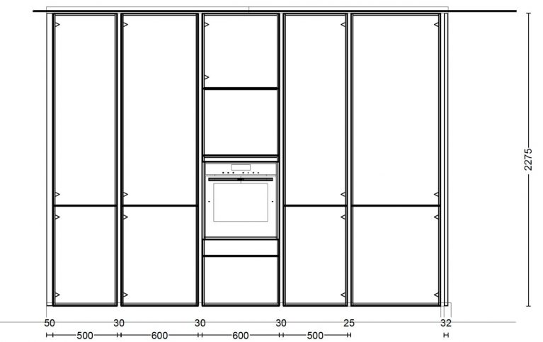
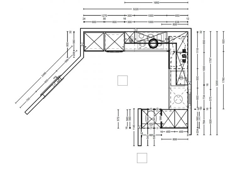
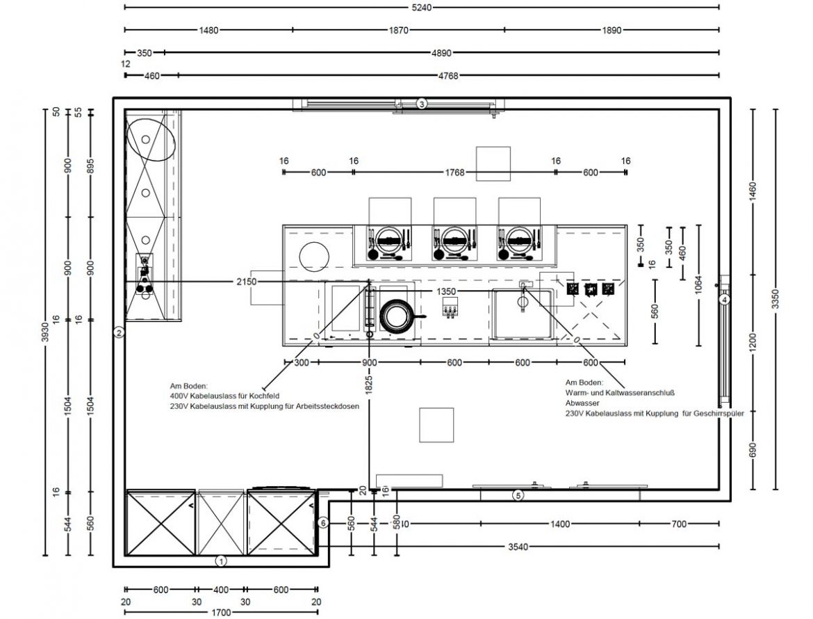
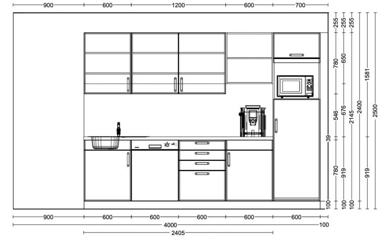
Designer: next125
Programm: NX 510 / NX 505
Front: L187M Onyxschwarz samtmatt AFP, L292M Indischrot samtmatt AFP, Samtmatt-Lackfront in 13 Farben erhältlich, L380 Nebelblau-Satin, Satinlack-Front in 16 Farben erhältlich
Unsere Vorteile gegenüber den Mitbewerbern
Aufgrund unserer Größenordnung und unserer festgelegten Firmenstruktur können wir unseren Partnern extrem schlanke Preise weitergeben. Somit können wir für Ihre zukünftigen Kücheneinrichtungen und Wohnkonzepte den besten Mehrwert anbieten! Wir beharren nicht auf strikte Regeln, sondern gestalten gemeinsam mit Ihnen das Wohnprojekt nach Ihren Vorstellungen.
Bei uns werden von Beginn an individuelle Vereinbarungen mit einem klaren Preisvorteil für Sie getroffen!
Unsere Referenzprojekte
High End Küchen
Premium Küchen
Basic Küchen
Konnten wir Sie überzeugen?
Werden Sie ein Partner von uns!
Unser Augenmerk liegt auf der Qualität und dem Design unserer Küchen, sowie einer individuellen und umfassenden Beratung zu modernen Küchenwelten. Wir möchten unser Können und unseren Bestpreis gerne unter Beweis stellen – kontaktieren Sie uns für ein erstes Gespräch und lernen Sie uns kennen!

